उत्पादने
मुख्यपृष्ठ > उत्पादने
उत्पादने
वितरणासाठी 35kV निश्चित संलग्न रिंग स्विचगियर
  • वितरणासाठी 35kV निश्चित संलग्न रिंग स्विचगियरवितरणासाठी 35kV निश्चित संलग्न रिंग स्विचगियर

वितरणासाठी 35kV निश्चित संलग्न रिंग स्विचगियर

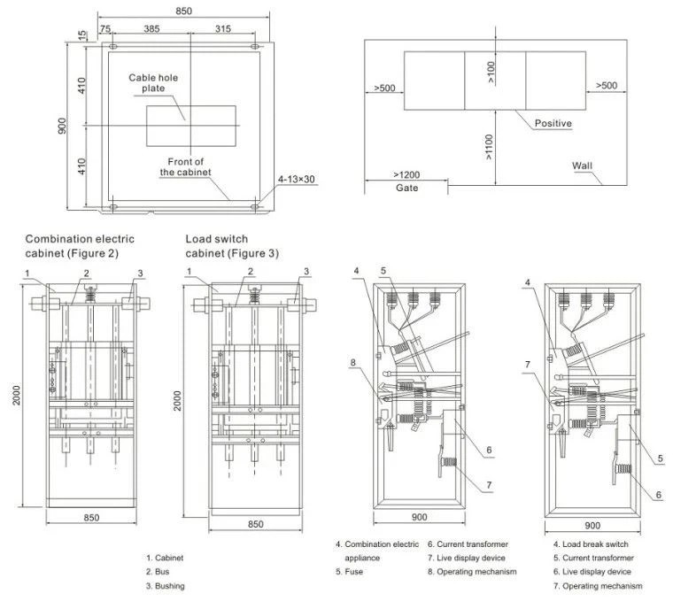
Comewill चीनमधील एक व्यावसायिक निर्माता आहे. वीज वितरणासाठी (यापुढे "रिंग मेन युनिट" म्हणून संदर्भित) वितरणासाठी आमचे 35kV निश्चित संलग्न रिंग स्विचगियर. हे एक उच्च-व्होल्टेज स्विचगियर आहे जे विशेषतः वीज वितरण प्रणालींसाठी डिझाइन केलेले आहे, वीज पायाभूत सुविधा प्रकल्पांच्या खरेदी आणि निवड आवश्यकतांसाठी योग्य आहे आणि खरेदी निर्णयांसाठी एक आदर्श पर्याय आहे.

वितरण नेटवर्क नियंत्रण आणि संरक्षणासाठी मुख्य उपकरणे म्हणून, चीनमध्ये बनवलेल्या वितरणासाठी Comewill उच्च दर्जाचे 35kV फिक्स्ड बंद रिंग स्विचगियर शहरी पॉवर ग्रिड बांधकाम आणि नूतनीकरण प्रकल्प, औद्योगिक आणि खाण उद्योग, उच्च-उंचाई इमारतींसाठी आवश्यक उपकरणे खरेदी करणे आणि सार्वजनिक सुविधांसाठी आवश्यक उपकरणे खरेदी करणे यासारख्या विविध अनुप्रयोग परिस्थितींमध्ये स्थिरपणे विश्वसनीय उर्जा देऊ शकते.

हे निश्चित-डिझाइन रिंग मुख्य युनिट आधुनिक वीज वितरण प्रणाली खरेदीसाठी पसंतीचे उत्पादन बनले आहे, जे तुम्हाला किफायतशीर ऊर्जा पायाभूत संरचना कॉन्फिगरेशन ऑफर करते.

तांत्रिक डेटा

अनुक्रमांक आयटम युनिट डेटा
1 रेट केलेले व्होल्टेज kV 12 40.5
2 रेट केलेली वारंवारता Hz 50/60
3 रेट केलेले वर्तमान A 630 ६३०/१२५०
4 व्होल्टेजसह रेटेड पॉवर फ्रिक्वेन्सी (1 मिनिट) टप्पे आणि पृथ्वीवर kv 42 95
अलगाव दूर 48 118
व्होल्टेजसह रेट केलेली विद्युल्लता टप्पे आणि पृथ्वीवर 75 185
अलगाव दूर 85 215
पॉवर फ्रिक्वेंसी व्होल्टेज सहन करते (नियंत्रण आणि सहायक सर्किट) 2
5 रेट केलेले अल्प-वेळ वर्तमान सहन करते kA 20/25 31.5
6 रेट केलेले शिखर वर्तमान सहन करते kA 50/63 80
7 रेटेड शॉर्ट-सर्किट करंटचा कालावधी s 4 4
8 रेट केलेले शॉर्ट-सर्किट ब्रेकिंग करंट kA 20/25 31.5
9 रेटेड शॉर्ट-सर्किट मेकिंग करंट kA 50/63 80
10 Arcing कालावधी s 1 1
11 रेट केलेला ऑपरेटिंग क्रम
0-0.3s-CO-3min-CO
12 इन्सुलेट गॅस
SF6
13 वार्षिक गळती दर % ≤ ०.०१
14 संरक्षणाची मानक पदवी सीलबंद गॅस बॉक्स
IP67
स्विचगियर संलग्नक IP4X
15 रेट केलेला चलनवाढीचा दबाव एमपीए 0.03
किमान कार्यात्मक पातळी दबाव 0.01
16 सहायक सर्किटचे रेट केलेले पुरवठा व्होल्टेज V DC 24, 48, 110, 220, AC220
17 यांत्रिक जीवन सर्किट ब्रेकर ऑपरेशन 10000 11000
अलगाव स्विच 5000 3000
अर्थिंग स्विच 5000 3000
18 सर्किट ब्रेकरची विद्युत सहनशक्ती ऑपरेशन 30(E2)
19 सेवेतील सातत्य गमावणे
LSC2

तांत्रिक ऑपरेटिंग पर्यावरण मापदंड

· सभोवतालचे तापमान: -10°C ~ +40°C
·उंची: उच्च-व्होल्टेज ≤1000m; लो-व्होल्टेज ≤2500m (अधिक श्रेणीच्या खरेदीसाठी सानुकूल डिझाइन उपलब्ध)
सापेक्ष आर्द्रता: ≤85%
भूकंपाची तीव्रता: ≤ तीव्रता 8
· पर्यावरणीय पूर्वस्थिती: आग/स्फोटाचा धोका नाही, गंभीर प्रदूषण नाही, रासायनिक गंज नाही, हिंसक कंपन नाही (खरेदी साइटने या गोष्टी पूर्ण केल्या पाहिजेत)

आमच्या सर्व कर्मचाऱ्यांच्या अथक परिश्रमांद्वारे, वितरणासाठी आमचे 35kV निश्चित संलग्न रिंग स्विचगियर आमच्या ग्राहकांसाठी विश्वासाचे स्रोत राहतील याची खात्री करण्यासाठी आम्ही आमचे गुणवत्ता व्यवस्थापन सतत सुधारत आहोत. ग्राहकांना जास्तीत जास्त सर्वसमावेशक चाचणी प्रणाली आणि सर्वात योग्य उपाय प्रदान करणे हे आमचे ध्येय आहे. आम्ही ग्राहक प्रथम, बाजाराभिमुखता आणि कार्यक्षमता या तत्त्वांचे पालन करतो आणि आमच्या प्रतिभेची सतत जोपासना करतो.

Hot Tags: मेटल बंद रिंग मुख्य युनिट, चीन, उत्पादक, कारखाना, किंमत, 630A एअर लोड ब्रेकर स्विच, इनडोअर 24kv गॅस एलबीएस, SF6 डिस्कनेक्टर स्विच, आउटडोअर पोर्सिलेन क्लॅड व्हॅक्यूम सर्किट ब्रेकर, सिंगल फेज व्होल्टेज 2 व्होल्टेज ट्रान्सफॉर्म, सिंगल फेज व्होल्टेज सर्किट ब्रेकर स्विचगियर

हॉट टॅग्ज: वितरण, चीन, उत्पादक, पुरवठादार, कारखाना, घाऊक, सानुकूलित, स्टॉकमध्ये, चीनमध्ये बनविलेले, कमी किंमत, गुणवत्ता यासाठी 35kV निश्चित संलग्न रिंग स्विचगियर
चौकशी पाठवा
संपर्क माहिती
  • पत्ता

    No.777 Wanweng Road, Wengyang उप-जिल्हा, Yueqing City, Wenzhou City, Zhejiang Province, China

  • दूरध्वनी

    +86-15224149953

  • ई-मेल

    hannah@comewill.com

स्विचगियर, व्हॅक्यूम सर्किट ब्रेकर, वर्तमान ट्रान्सफॉर्मरसाठी Comewill कडे चौकशी पाठवा. आमच्या चीन फॅक्टरी टीमकडून सानुकूलित कोट्स, कमी किमती किंवा तज्ञांचे समर्थन मिळवा.
X
आम्ही तुम्हाला एक चांगला ब्राउझिंग अनुभव देण्यासाठी, साइट रहदारीचे विश्लेषण करण्यासाठी आणि सामग्री वैयक्तिकृत करण्यासाठी कुकीज वापरतो. ही साइट वापरून, तुम्ही आमच्या कुकीजच्या वापरास सहमती देता. गोपनीयता धोरण
नकार द्या स्वीकारा